BF系列伸缩溜筒专用除尘器
BF系列伸缩溜筒专用除尘器,是针对装船机伸缩溜筒散料输送粉尘设计的专用除尘设备。该除尘模块高度集成,体积小,结构紧凑,无需连接除尘风管,能适配市面绝大多数型号的散装机和伸缩溜筒。BF系列伸缩溜筒专用除尘器收集的灰尘会被重新排放至料堆,无需二次处理。是目前最理想最高效的溜筒末端专用除尘器。
性能特点
01 结构紧凑,重量轻,增加负载小
BF系列溜筒专用除尘器采用紧凑型设计,结构合理,负载均匀对称,设备重量轻,增加的额外负载小,大部分装船机均能承受。
02 集成控制箱,可与现有溜筒控制系统联锁
BF系列溜筒专用除尘器标配控制箱,可实现对除尘风机、脉冲阀的程序控制,同时也可以接入现有的装船机中控系统,实现联锁控制。
03 适用性强,可适用于现有市面大部分装船机伸缩溜筒
BF系列溜筒专用除尘器采用对称设计,设备安装在伸缩溜筒底部,采用法兰与现有溜筒底部连接,不额外占用装船机上部空间,可适用于现有市面大部分装船机伸缩溜筒。
04 适用性强,可适用于现有市面大部分装船机伸缩溜筒
BF系列溜筒专用除尘器采用PTFE覆膜聚酯纤维滤芯,耐水耐油,过滤精度1微米(0.1-15微米可选),使用寿命长,适用于港口码头、冶金矿山、建材化工等各种领域。滤芯采用快拆式安装,拆卸方便易维护。
05 在线清灰,无需处理除尘灰
BF系列溜筒专用除尘器集成了在线脉冲清灰系统,在除尘器使用过程中,按照设定程序实时清理滤芯上附着的粉尘,清理掉的粉尘直接进入除尘器底部, 随料流一起落入料堆,无需处理除尘灰,减少维护工作量。
06 紧贴尘源,集尘效率高,设备功耗低
BF系列溜筒专用除尘器安装在溜筒底部,物料滑过溜筒冲击料堆产生的粉尘和空气扰动,立刻被除尘器所收集,集尘效率高,粉尘溢出少;因为除尘器靠近尘源,只需要较小的吸力就能控制粉尘外溢,所以除尘风机功率低能耗小。
技术参数
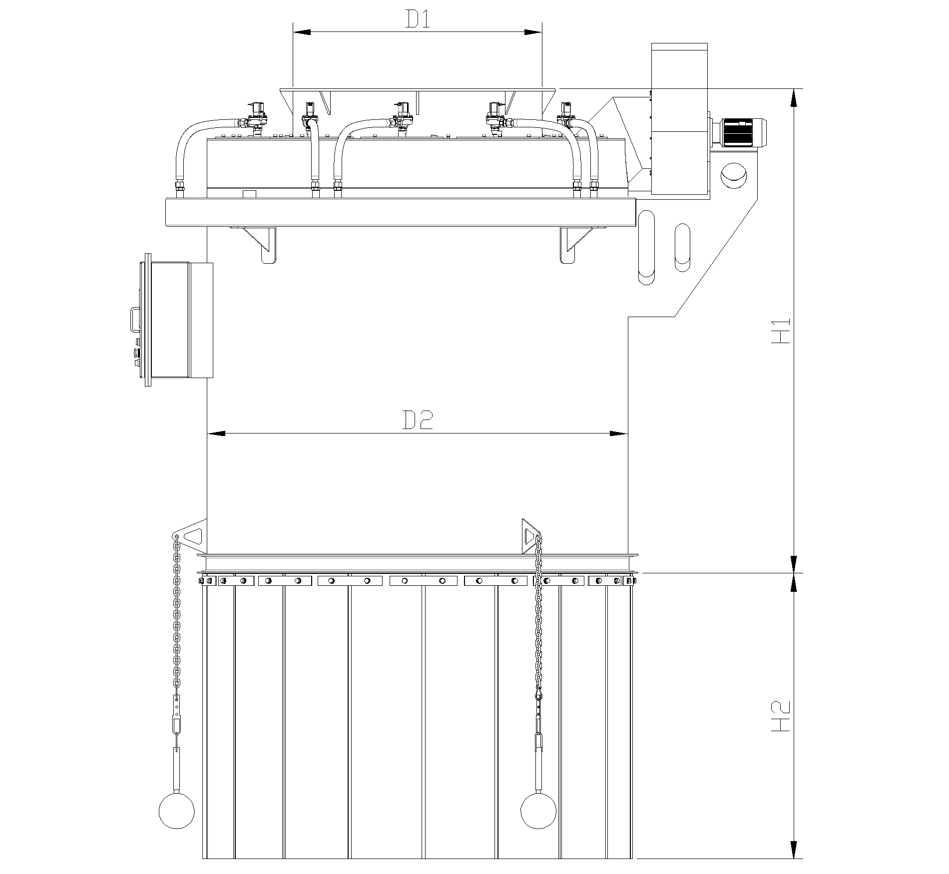
| 内径 D1 | D1(根据现场情况定制) |
| 外径 D2 | D1+700mm |
| 除尘器高度H1 | 2200mm |
| 橡胶裙边高度H2 | 1200 |
| 除尘风量 | 4000~8000m³/H |
| 风机功率 | 3~8KW |
| 过滤风速 | 1.5m/min |
| 清灰方式 | 脉冲阀自动清灰 |
| 增加负载 | ≤1000KG |
*上述技术参数为理论参考数据,不同工况不同物料,理论通过量也会不同,请以销售经理提供的技术方案或技术协议参数为准。
联系信息
在线留言
请填写以下表单,我们的团队将尽快与您联系
联系我们
地址:上海浦东新区宣春路172号
邮箱:jieyanchina@163.com
手机:13611679928(24H热线)
电话:021-68015579(工作日 8:30-17:00)
传真:021-20919219
微信公众号
抖音官方号
